Startseite zum Kontaktformular Telefon zum Menü
Baum Immobilien - Gutachten & Immobilien
Kurzexposé drucken (PDF)

"Schöne Aussicht im Zentrum von Bad Krozingen" (V210105)

Typ: 2 Zimmer Wohnung
Etage: DG
Lage: Bad Krozingen
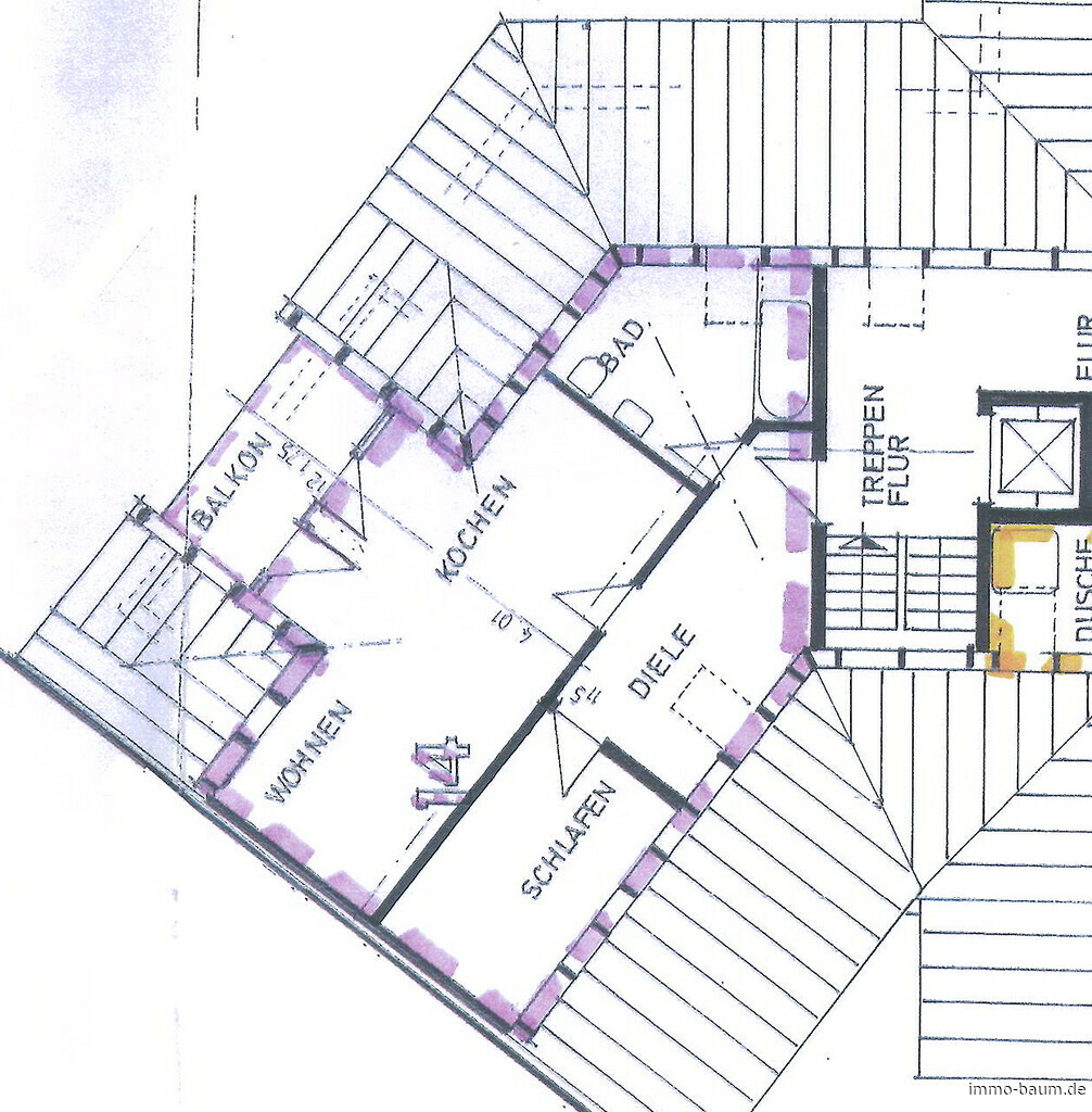
Wohnfläche-Nutzfläche: 48 qm
Besichtigung: nach Vereinbarung
Preis: VERKAUFT
  Alle Objektangaben beruhen auf Mitteilung des Eigentümers, für deren Richtigkeit kann keine Haftung übernommen werden.


Beschreibung

Willkommen im Herzen von Bad Krozingen, einer charmanten Kurstadt mit hoher Lebensqualität und idealer Infrastruktur. Die gepflegte 2-Zimmer-Dachgeschosswohnung befindet sich in einer ruhigen Seitenstraße in unmittelbarer Nähe zum Lammplatz - einem der zentralsten und lebendigsten Orte der Stadt. Einkaufsmöglichkeiten, Apotheken, Ärzte und Cafés liegen nur wenige Schritte entfernt und machen den Alltag besonders bequem. Auch der Bahnhof Bad Krozingen mit direkter Anbindung nach Freiburg, Basel und in die Region ist fußläufig schnell erreichbar - ideal für Pendler oder Stadtliebhaber.
Das im Jahr 1993/94 erbaute Mehrfamilienhaus ist gepflegt, ruhig gelegen und bietet modernen Wohnkomfort. Ein Aufzug führt bequem bis in das Dachgeschoss - barrierearm und alltagstauglich für jedes Alter. Die Wohnung selbst liegt in der obersten Etage und bietet durch die Lage einen besonders schönen Ausblick ins Grüne sowie eine angenehme Ruhe trotz Innenstadtlage. Die rund 48 m² große Dachgeschosswohnung überzeugt mit einem durchdachten Grundriss und einer hellen, freundlichen Ausstrahlung. Besonders ins Auge fällt die großzügige Raumwirkung durch die hohen Decken bis in den First sowie das sichtbare, weiß gestrichene Gebälk, das dem Wohnraum einen gemütlichen und gleichzeitig luftigen Charakter verleiht. Die Dachgeschosswohnung überzeugt mit einer durchdachten und funktionalen Ausstattung, die sowohl Komfort als auch Wohnqualität bietet. Wohn- und Schlafzimmer sind mit hellen, pflegeleichten Fliesenböden ausgestattet, die dem Raum eine freundliche, zeitlose Atmosphäre verleihen. Der offene Wohn- und Essbereich bietet direkten Zugang zum großzügigen überdachten Balkon, der nach Südwesten ausgerichtet ist. Mit seinem Blick ins Grüne wird er in den warmen Monaten zum erweiterten Wohnbereich und lädt zum Verweilen ein. Die kleine, funktionale Einbauküche fügt sich harmonisch in den Wohnraum ein. Das Badezimmer ist hell gefliest und mit einer praktischen Dusche sowie einem Platz für die Waschmaschine ausgestattet. Im Schlafzimmer sorgt ein maßgefertigter Einbauschrank für optimalen Stauraum, ohne dabei wertvolle Stellfläche zu verlieren - eine platzsparende Lösung mit praktischem Mehrwert. Zur Wohnung gehört ein Kellerabteil im Untergeschoss, das Ihnen zusätzlichen Stauraum bietet. Der Tiefgaragenstellplatz kostet zusätzlich 20.000 EUR - ein wertvoller Vorteil in zentraler Lage.
Die Wohnung ist aktuell für 590 EUR Kaltmiete pro Monat vermietet und eignet sich daher hervorragend als Kapitalanlage mit solider Rendite in einem gefragten Wohnstandort. Die zentrale Lage, die Nähe zum Bahnhof und das gepflegte Wohnumfeld machen sie auch langfristig zu einer attraktiven Mietimmobilie.


Grundrisse



Kurzexposé drucken (PDF)


Umgebung: Bad Krozingen

Bad Krozingen - das Erholungsparadies im Breisgau! Idyllische Landschaften, vielfältige kulturelle Angebote und ein gut ausgebautes Versorgungsnetz machen das Leben im Ort so lebenswert und angenehm.

Die Luft ist rein, das Wasser reich an Mineralien, Sonne und milde Temperaturen verbreiten südlichen Flair...
Inmitten des hügeligen Markgräflerland zwischen Rheinebene und Schwarzwald lässt sich das Leben in Bad Krozingen in vollen Zügen genießen.



< vorheriges Objektzurück zur Suchenächstes Objekt >


Ansprechpartner in Sachen Immobilien

Frank Baum
Immobilienfachwirt (IHK), Dipl. Sachverständiger (DIA)
Hauptstraße 24
79254 Oberried
Telefon: +49 (0) 7661 -90 50 10
Fax: +49 (0) 7661 - 90 50 10
Frank Baum - Ansprechpartner in Sachen Immobilien