"Zwei Zimmer mit Privatgarten in Stuttgart-Feuerbach" (A21111)
| Typ: | 2 Zimmer Wohnung |
|---|---|
| Etage: | Hochparterre |
| Lage: | Stuttgart-Feuerbach |
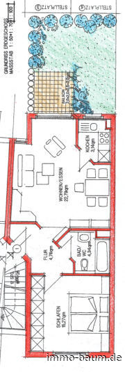
| Wohnfläche-Nutzfläche: | 51 qm |
| Stellmöglichkeiten: | Kellerraum |
| Bezug: | ab dem 01.12.2022 |
| Energieausweis: | Energieverbrauchskennwert |
| Energieausweis-Kennwert: | 111 kWh/(m²a) |
| Energieeffizienz: | D |
| Befeuerungsart: | Gas |
| Besichtigung: | nach Vereinbarung |
| Preis: | VERKAUFT |
| Provision: | Keine Käuferprovison! |
| Alle Objektangaben beruhen auf Mitteilung des Eigentümers, für deren Richtigkeit kann keine Haftung übernommen werden. |
Beschreibung
Diese gut geschnittene zwei Zimmer Hochparterrewohnung, befindet sich in einem gepflegten Achtfamilienhaus im Stuttgarter Stadtteil Feuerbach. Das Haus wurde im Jahr 1997 neu erstellt, die gepflegte Wohnung ist aktuell noch vermietet, wird aber zum 01.12.2022 frei. Die Wohnung überzeugt durch ihren funktionalen Grundriss und eine solide Ausstattung. Der nach Süden ausgerichtete Gartenbalkon ist über eine Treppe mit dem kleinem Privatgarten verbunden und direkt vom Wohnzimmer aus begehbar. Im Sommer wird dieser Bereich im ruhigen Hinterhof zum erweiterten Wohnraum. Die separate Küche mit Fenster ist im Wohnzimmer zu Gartenseite integriert, das hell geflieste Bad verfügt über eine Badewanne mit Waschbecken und Toilette. Das Schlafzimmer mit ca. 15 m² bietet Platz für ein Doppelbett und einen großen Kleiderschrank. In der Diele sowie im Schlaf- und Wohn-Esszimmer sind die Böden mit Laminat belegt, das Bad und die Küche sind mit Fliesen ausgestattet. Zur Wohnung gehört ein Kellerraum im Untergeschoss, dort befindet sich auch der Fahrradkeller sowie der Wasch- und Trockenraum mit eigenem Waschmaschinenplatz. Das Zenturm von Feuerbach ist in nur wenigen Genminuten schnell erreichbar. Die Infrastruktur vor Ort ist sehr gut. Einkaufsmöglichkeiten, Ärzte, Apotheken, Drogerien und eine Vielzahl von Gastronomiebetrieben sowie die nahe gelegene U-Bahnstation " Wilhelm-Geiger-Platz" mit sehr guter Anbindung in das Zentrum von Stuttgart, machen diesen Standort sehr attraktiv. Rufen Sie an und vereinbaren Sie einen Besichtigungstermin.Grundrisse
Umgebung: Stuttgart-Feuerbach
< vorheriges Objektzurück zur Suchenächstes Objekt >


